Design et réemploi pour les nouveaux bureaux d'HelloAsso
Depuis 2014, le siège social d’HelloAsso est situé à Bègles au cœur de la Cité Numérique, face aux bureaux de Onepoint (voir les agencement réalisés pour Onepoint)
Après ses 10 ans d’existence et forte d’un développement constant de ses effectifs et activités au service des associations, HelloAsso entreprise de l’économie sociale et solidaire, doit pousser les murs.
Elle reprend les locaux occupés précédemment par le laboratoire pharmaceutique Sanofi dans cette même Cité Numérique au début de l’année 2025.
Si l’espace projeté est grand et de qualité, il doit être adapté aux besoins d’HelloAsso et représenter fidèlement ses valeurs et son identité.
Les designers ont donc pour mission de reprendre l’aménagement du plateau en y intégrant les équipements et mobiliers d’HelloAsso, tout en accompagnant l’accroissement de ses effectifs dans le temps et l’évolution de son organisation de travail et de management, le tout dans une maîtrise forte du coût
Comment le réemploi peut-il apporter une réponse sobre et robuste pour le design et l’agencement de bureaux ?
Quand on a décidé de changer de locaux chez HelloAsso, on s'est donné un objectif : que ce déménagement reflète vraiment ce que l'on est.
Une entreprise de l’ESS, née pour servir l’intérêt général, un collectif qui veut prouver qu’on peut faire autrement.
On a cherché à faire juste et utile ! Merci à Félix associés, ateliers de design B Corp pour votre accompagnement précieux et votre approche si alignée avec nos valeurs…
Chief Product and Technology Officer - HelloAsso







Nos designers d’espace et architecte d’intérieur se sont employés à réaliser ce projet, de la conception à la coordination de chantier
Résultats
80% de matériaux réutilisés
600 m2 en 5 espaces distincts
125 postes de travail
4 semaines de travaux
1 entreprise tous corps d’état
Et surtout : des clients contents
Définir les enjeux design d’un projet d’aménagement de bureaux professionnels
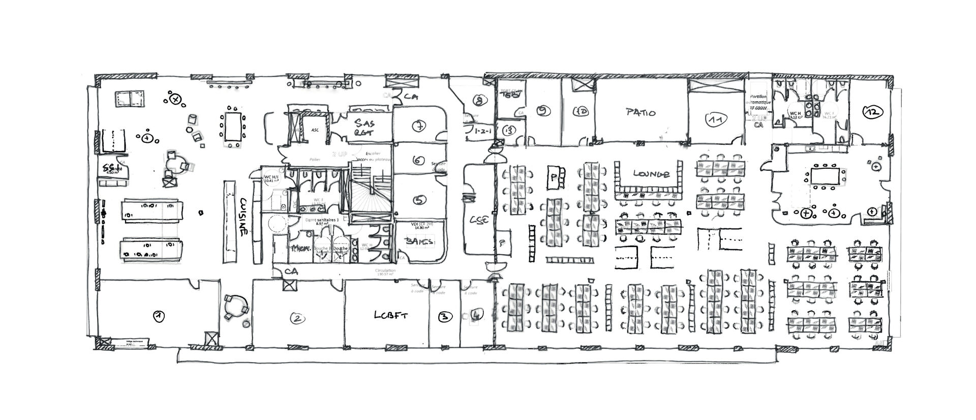
Le plateau à aménager est situé au 3ème étage de la Cité Numérique sur une surface d’environ 1450m².
Le programme architectural structure le cahier des charges projeté à partir de l’état des lieux des espaces et fonctions en présence
Dans son état des lieux original, le plateau était distribué ainsi :
. un vaste espace d’accueil avec banque d’accueil et espace d’attente et une salle de réunion en amont des portiques d’accès.
. un premier secteur avec bureaux et salles de réunions, constitués de parois modulaires pleins ou vitrées.
. un vaste open-space (correspondant à environ 60% de la surface totale) donnant sur un patio et destiné à recevoir environ 70 collaborateurs.
Dans cet open-space des « cabanes/espaces de réunions étaient disposées)
En sol, toutes les alimentations électriques (CFo et CFa) distribuaient les postes de travail via un plancher technique (dalles sur plot)
. une cuisine / espace de détente et de rencontre.
L’ensemble du plateau bénéfice de vastes baies vitrées et d’un balcon filant sur la quasi-totalité de la façade.
Les prestations du plateau étaient très soignées et qualitatives (nombreux baffles acoustiques, parois vitrées bords à bords (certains éléments en verre cintré), moquette sur l’ensemble de la surface de l’espace de travail.
Le programme demandé par HelloAsso est sensiblement différent de celui de Sanofi.
Pour la séquence d’entrée, la demande était « un espace communautaire, ouvert, sympathique et vivant, pouvant à l’occasion accueillir des meetings et assemblées générales jusqu’à 160 personnes.
Dans cet espace, une cuisine, des tables communes géantes, une zone détente, la table de ping-pong etc.
La banque d’accueil et les portiques n’étaient pas nécessaires, le contrôle d’accès des collaborateurs étant déplacé plus loin dans le programme.
C’est donc un espace ouvert et largement dimensionné, une véritable pièce de vie à l’échelle de HelloAsso qui était demandée.
. La plupart des bureaux et des salles de réunions ont été maintenus en l‘état (hormis la signalétique)
. Certaines des salles de réunions préexistantes ont été démontées soigneusement et les éléments constitutifs conservés pour un réemploi futur sur site.
. L’espace Open-space a été maintenu dans ses dimensions mais la capacité d’accueil a été portée à 140 collaborateurs.
. L’espace de convivialité a été maintenu et évolue dans ses usages et fonctions (points d’équipe, activités de groupe etc.) et une salle de créativité y a été ajoutée.


Stratégie de conception centrée sur le réemploi
Jusque-là, tout est conventionnel dans le constat d’état des lieux et dans l’évolution de programme.
Mais nous avons avec HelloAsso établi une stratégie de projet bien particulière.
Compte tenu de leur modèle économique et de leur éthique, HelloAsso ne souhaitait pas injecter dans le projet un budget important.
Nous avons donc co-construit le projet avec HelloAsso pour atteindre au final les objectifs suivants :
- transformer des bureaux existants assez impersonnels en espace de travail sur mesure à l’image de la société, sociale, numérique et chaleureuse
- concevoir avec le plus de réemploi : 80% des matériaux de seconde œuvre ont été réutilisés !
- concevoir dans un moindre budget : 1450m² de bureaux pour moins de 150K€ tous frais compris, soit environ 100€/m² !


Le réemploi est aussi une réponse design
C'est une réponse formelle, éthique et économiquement viable pour un aménagement d’espace frugal et robuste
Voici les mots de Berengère Alart CPTO chez HelloAsso :
"Quand on a décidé de changer de locaux chez HelloAsso, on s'est donné un objectif : que ce déménagement reflète vraiment ce que l'on est.
Pas juste une boîte tech avec des bureaux stylés, une entreprise de l’ESS, née pour servir l’intérêt général. un collectif qui veut prouver qu’on peut faire autrement.
Avec notre budget contraint, ça nous a poussés à être encore plus alignés avec notre ADN :
-> 100% de mobilier de seconde main et équipements reconditionnés, plutôt que flambant neuf
-> Des choix de matériaux durables, pensés pour tenir dans le temps
-> Un acteur local engagé, Félix associés, ateliers de design B Corp, pour nous accompagner à chaque étape (…)
-> Et beaucoup de discussions d’équipe : sur l’utilité, le confort, l’usage… avant le “style”
On n’a pas cherché le “beau", on a cherché à faire juste et utile
Merci à Félix associés, ateliers de design B Corp pour votre accompagnement précieux et votre approche si alignée avec nos valeurs…"
Merci à vous HelloAsso !
Comment transformer des bureaux impersonnels en un espace de travail chaleureux et robuste à moindre coût ?
C’est donc un projet en co-conception et le plus frugal possible.
Le souci et les efforts d’écoconception ont donc été constants.
Partant principalement du principe que la plus forte économie en la matière, c’est de ne pas détruire des ressources pour en apporter de nouvelles, si tout ce qui est nécessaire est déjà présent.
La meilleure façon de ne pas générer de pollution est de réemployer.
. Nous avions sur place un stock résiduel de dalles de moquettes qui a servi là où c’était nécessaire.
. Nous avions des parois vitrées et des cloisons modulaires, des portes vitrées de qualité.
. Nous avions des cabanes / espaces de réunion
. Nous avions des baffles acoustiques
. Nous avions une installation électrique bien calibrée
. Nous avions une installation satisfaisante côté sanitaires et services
En complément, tous les choix de matériaux neufs ont été réfléchis et raisonnés (peintures sans C.O.V., sols souples majoritairement à base de matériaux recyclés etc.)
Au global, le résultat est une économie substantielle en termes de budget, de temps de chantier, de nuisances, de contraintes d’approvisionnement etc.
Nous avons sélectionné SOPIBAT l’entreprise la plus volontaire pour participer à cette démarche, qui après l’avoir expérimentée a clairement exprimé son plaisir et son envie de renouveler la démarche dans des projets futurs.
L’équipe d’HelloAsso a également manifesté sa satisfaction d’avoir un projet d’aménagement en phase avec ses convictions sociétales.
Pour l’agence Félix et associés, c’est un succès et un projet exemplaire par plusieurs aspects :
-> Projet malin
-> Projet frugal
-> Projet honnête et intègre
-> Projet audacieux et responsable



